Overview

Property ID: IHILCC-011173
  • Villa
  • Property Type
  • 4
  • Bedrooms
  • 5
  • Bathrooms
  • 262

Description

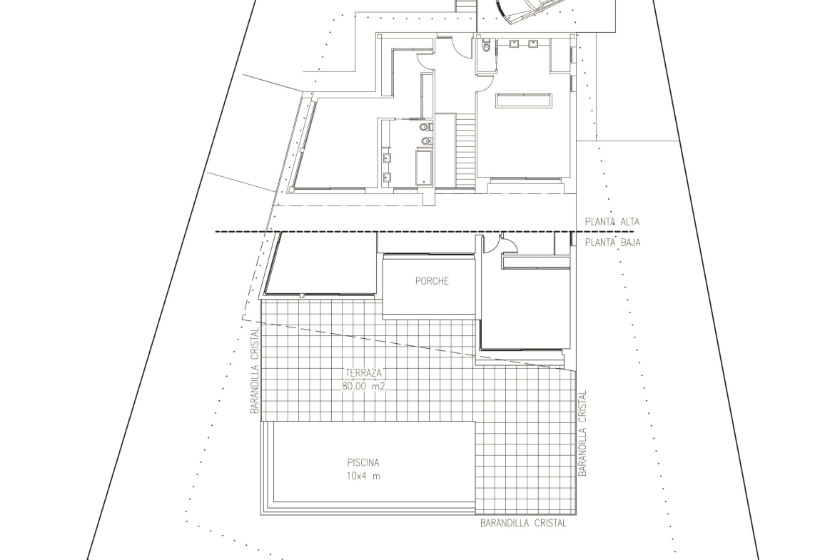
Spectacular villa, with minimalist design for sale in Alcalali. It is located on a plot of 1,000 m2 with incredible views over the Jalon Valley, and it is South facing. 2 floor villa, with a total of 262 m2. The top floor is distributed in entrance hall, two bedrooms, each with en-suite bathroom and one with a dressing room. From each of these rooms you can access a vast terrace of 122 m2. Through an interior staircase is accessed the main floor which is distributed in dining room, lounge, kitchen, pantry, an extra WC and two bedrooms each with en suite bathroom and closets. In total the house has 4 bedrooms, all with en-suite bathroom, and an extra guest toilet. From this floor you may access a covered terrace, a pool terrace of 80 m2 and the 10 x 4 infinitive type swimming pool, which has an interior light and all the necessary equipment for it’s correct function. The price also includes the required elevation to locate the house on the slope of the land; the parking lot of concrete at street level, the stone wall of 60 cm at the boundary with the street and the car and pedestrian access. It is also included a staircase from the street to the entrance of the house. The water and electricity connections are also included. High quality of construction. The license and project drawn up by an architect is also included in the price. The client will have the freedom to modify the planes, qualities of construction or the materials chosen. From this plot, you can enjoy a magnificent view of the entire Valley of Jalon. Alcalalí is a pretty village nestled in a valley of Jalon, very typical, well connected and with all the necessary services. It is only 20 minutes from beaches in the coastal area of Calpe and Benissa. And just 1 hour from Alicante’s international airport.

Details

Updated on April 29, 2026 at 4:02 am
  • Property ID: IHILCC-011173
  • Price: €823,809
  • Property Size: 262 m²
  • Land Area: 1000 m²
  • Bedrooms: 4
  • Bathrooms: 5
  • Property Type: Villa
  • Property Status: For Sale

Address

  • Address Alcalalí, Alicante, Spain
  • City Alcalalí
  • State/county Costa Blanca
  • Country Spain

Compare listings

Compare
Ideal Homes Int
  • Ideal Homes Int